VERMIETET ! Lichtdurchflutet Wohnen mit Kamin und TOP-Ausstattung in bevorzugter Lage Bogenhausen!
Objektart
Adresse
Objektdaten
Informationen
Ausstattung
Details
Die lichtdurchflutete Etagenwohnung befindet sich im ersten Obergeschoss einer kleinen Eigentümergemeinschaft mit sieben Parteien.
Das Gemeinschaftseigentum, die Außenanlagen und das Treppenhaus machen einen äußerst gepflegten Eindruck.
Im Untergeschoss steht Ihnen ein großzügiger Kellerraum/Hobbyraum mit Heizung, Licht und Stromanschluss sowie einem Fenstern als Abstellraum zur Verfügung.
Auch einen Fahrradraum sowie einen Trocken- und Waschraum mit Stellplatz für die eigene Waschmaschine erreichen Sie im Untergeschoss der Anlage.
Als besonderes Wellnesshighlight steht den Bewohnern eine gemeinschaftliche Sauna im Untergeschoss zur Verfügung.
Der ebenerdige Tiefgaragenstellplatz Nr. 6 kommt mit 100 EUR/ Monat zum Mietpreis der Wohnung hinzu.
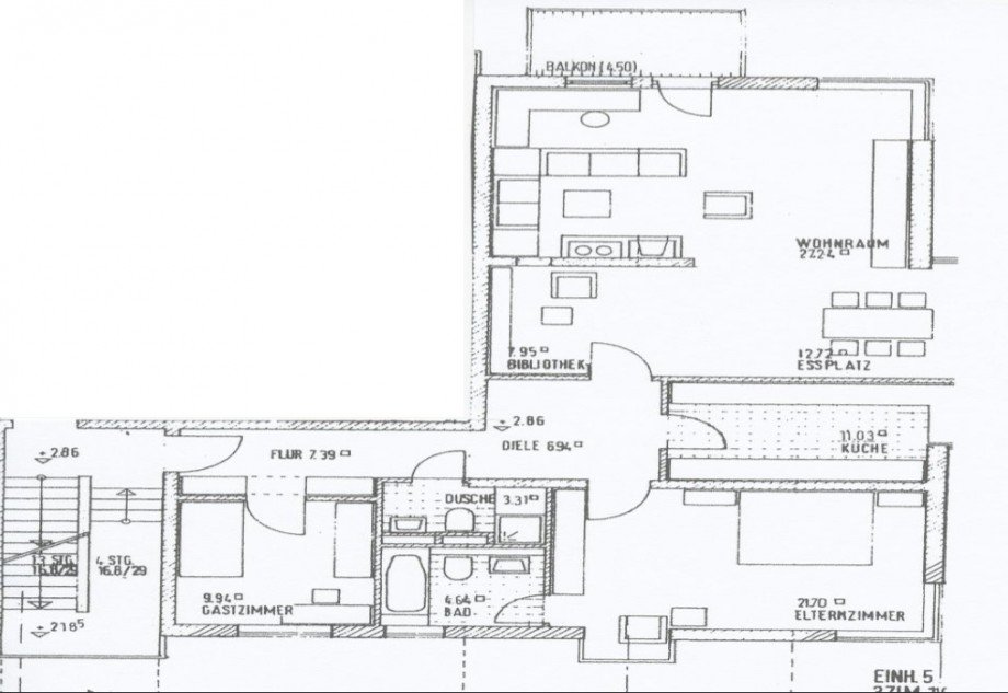
Die vorgenannte Wohnung besticht vor allem mit individuellem Grundriss und hochwertiger Ausstattung.
Die beiden Schlafräume wurden mit hellem Teppichboden versehen und sind - aufgrund quadratischem Schnitt - ideal möblierbar.
Das Elternschlafzimmer verfügt über ein En suite-Badezimmer mit zeitlosen, hellen Fliesen, Badewanne und Fenster.
Zusätzlich steht ein Gästebadezimmer mit Dusche in selbigem Design zur Verfügung.
Die Küche ist mit einer attraktiven Einbauküche mit hellen Fronten und sämtlichen Elektrogeräten versehen. Zusätzlich können Sie hier einen gemütlichen Essplatz einrichten.
Der weitläufige Wohnbereich mit insgesamt 48 m2 überzeugt mit vielen Fenstern und einzigartigem Schnitt. Der traumhafte, offene Kamin spendet im Winter wohlige Wärme. Auch haben Sie hier Zugang zum schönen Westbalkon mit Blick in den großzügigen, liebevoll angelegten Gemeinschaftsgarten, welcher von den zukünftigen Bewohner selbstverständlich genutzt werden kann.
Überzeugen Sie sich bei einer persönlichem Besichtigungstermin selbst von diesem Schmuckstück in beliebter Lage.
Die Wohnung liegt in Alt-Bogenhausen zwischen dem Herkomer- und dem Effnerplatz. Die Geschäfte des täglichen Bedarfs sind in nur wenigen Fußminuten zu erreichen. Öffentliche Verkehrsmittel (Richtung Innenstadt, Schwabing und München Ost) sind nur einen Steinwurf, die U 5 (Richard-Strauß-Str. oder Arabellapark) ist fußläufig 5 bis 10 Minuten entfernt. Schulen und Kindergärten befinden sich am Herkomerplatz (< 5 Minuten Fußweg). Die nahegelegenen Isarauen, der angrenzende Herzogpark, die Nähe zum englischen Garten sowie zur Innenstadt und die verkehrsgünstige und trotzdem erstaunlich ruhige Lage sind weitere Vorteile der sehr guten Lage.
Die gesamte Wohnung ist mit Fußbodenheizung ausgestattet, in den beiden Schlafräumen wurden zusätzliche Heizkörper angebracht.
Für eine persönliche Besichtigung der Wohnung wenden Sie sich bitte an unser Büro unter 089:24207090
Die Besichtigung der Wohnung findet am Mittwoch den 12.12.18 ab 10 Uhr statt !
Ansprechpartner
Telefax: 089 24 20 70 921
Mobil: 0178-33 33 808
dirk.lielich@all-terraring.de
Ich bin damit einverstanden, dass mir Karten von Google angezeigt werden. Es gelten die Datenschutzbedingungen von Google (https://policies.google.com/privacy).
Ich bin einverstanden